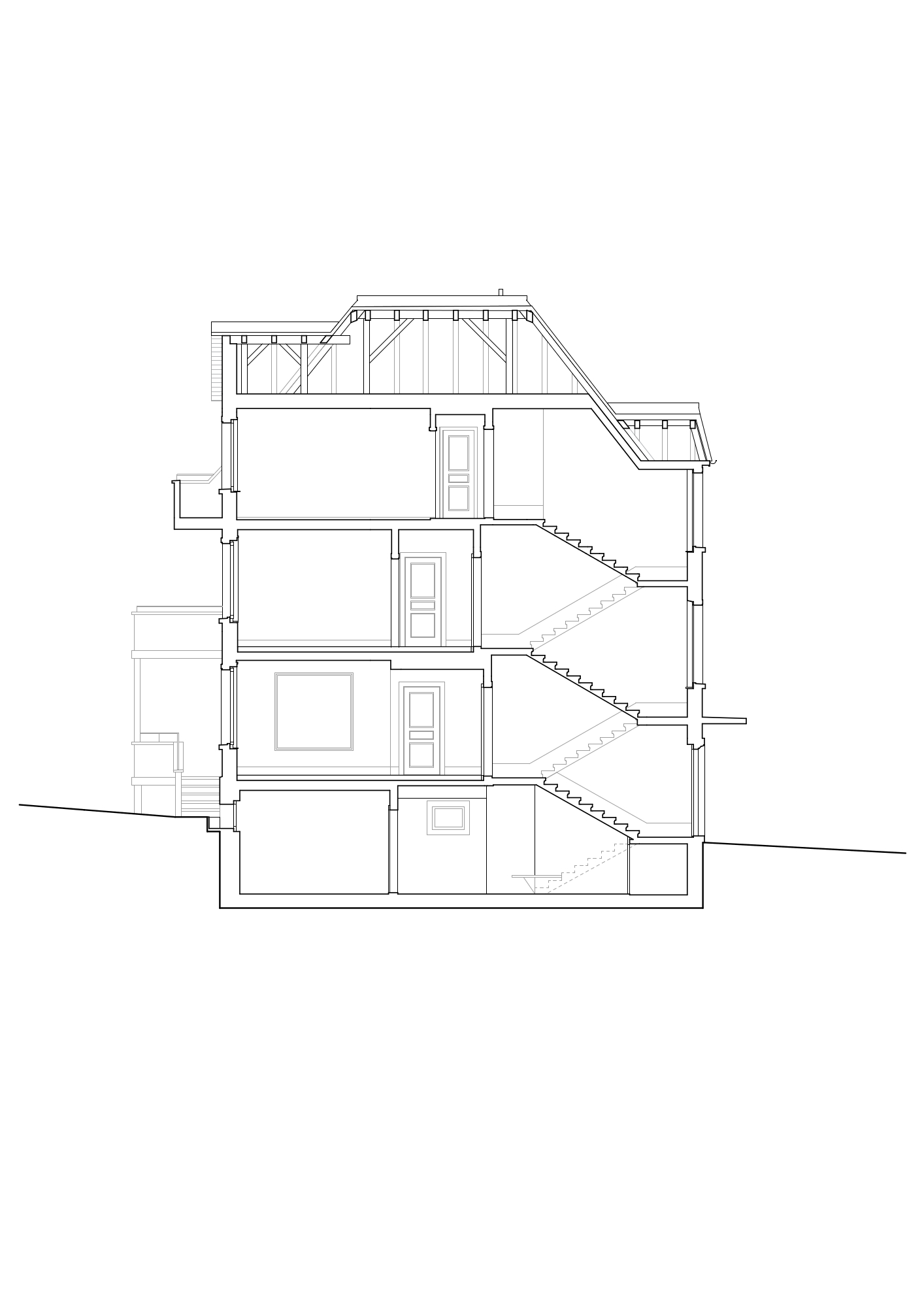
Umbau Zweifamilienhaus
Ort: Strandweg, Wabern bei Bern
Fertigstellung: 2025
Projektbeschrieb Downloaden
Umbau Zweifamilienhaus
Ort: Strandweg, Wabern bei Bern
Fertigstellung: 2025
Projektbeschrieb Downloaden
01_sdu
02_sol
03_rop
04_kil
05_juz
06_g12
07_rmu
08_hay
09_mzl
10_w26
11_tpf
12_kor
13_flu
14_sjb
15_cor
16_kir
17_juz
18_mat
19_ubw
20_bgy
21_gbi
22_enn
23_kmh
24_des
25_tpf
26_l40
27_mzw
28_taf
29_zi7
30_irb
31_ham
32_was
33_pfh